4 rue Max Bruchet - 74000 ANNECY - Tél +33 4 50 57 64 54

| Lieu | Maxilly sur Leman 74 |
| Maîtrise d’ouvrage | Département de la Haute savoie |
| Maîtrise d’œuvre | Favre & Libes Architectes associé à Atelier Martin Grenot |
| Mission | Complète + OPC |
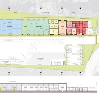
| Surface | 566 m² surface de plancher (1 810 m² SU) |
| Coût des travaux | 1 912 000 Euros H.T |
| Date de livraison | Février 2021 |
Afin de répondre à l’évolution de ses besoins, le Département a décidé de réhabiliter le bâtiment existant et de prévoir une extension pour augmenter la capacité en stationnement couvert et fermé pour la flotte d’engins mais également pour améliorer considérablement les besoins en énergie du site. Le parti architectural intègre, de part les volumétries édifiées, la nécessité d’une intégration paysagère qualitative au regard du site privilégié dans le quel il s’inscrit. La démolition de l’entité des bureaux, les volumétries édifiées ou réhabilitées, leur organisation garantissent une efficacité fonctionnelle des espaces et une qualité d’usage indispensable pour les agents. L’organisation des espaces extérieurs permettent de sécuriser les circulations et faciliter les manoeuvres des engins.
Jean-Michel Favre et Eric Libes Architectes
4 Rue Max Bruchet - 74000 ANNECY
+33 4 50 57 64 54